See how we've helped homeowners like you

Explore our recent projects and see how our fast, non-disruptive solutions solve common foundation problems.

Ground improvement for a two-storey residential property in Co. Limerick

Ground improvement for a two-storey residential property in Co. Limerick

A recently purchased two-storey home in Co. Limerick was affected by subsidence caused by a historic water leak and poor drainage, delaying planned ...

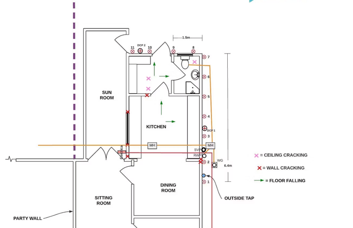
Single-storey extension stabilised in one day despite shallow foundations and live utilities

Single-storey extension stabilised in one day despite shallow foundations and live utilities

A single-storey extension in Co. Louth suffered structural cracking due to inadequate foundations, with ground movement compounded by nearby live gas ...

Single-storey rear extension subsidence repair, Co. Galway

Single-storey rear extension subsidence repair, Co. Galway

Subsidence affected a rear blockwork extension in Galway, with multiple reports confirming ground instability. Damaged drainage contributed to ...

Ground stabilisation, Belfast

Ground stabilisation, Belfast

Severe ground movement caused structural damage, requiring temporary structural support and tenant relocation.

Rescuing single storey extension from clay shrinkage in County Armagh

Rescuing single storey extension from clay shrinkage in County Armagh

Significant subsidence cracking affected a County Armagh extension due to clay shrinkage. Nearby trees and damaged drains caused soil desiccation ...

Co. Kildare Raft Slab Failure

Co. Kildare Raft Slab Failure

The home had worsening cracking and uneven floors caused by a failing raft slab on peatland soils.

15 Homes treated in Dublin

15 Homes treated in Dublin

Subsidence affected 15 terraced homes due to weakened soils from nearby construction.

Clay shrinkage ground improvement

Clay shrinkage ground improvement

See how Geobear solved a subsidence issue affecting a property in Co. Wexford in just two days.

Ready to solve your home's foundation problems?

You've seen our proven results. Let our friendly experts provide a clear, no-obligation quote for your property.

Bear pointing Bear pointing