Challenge
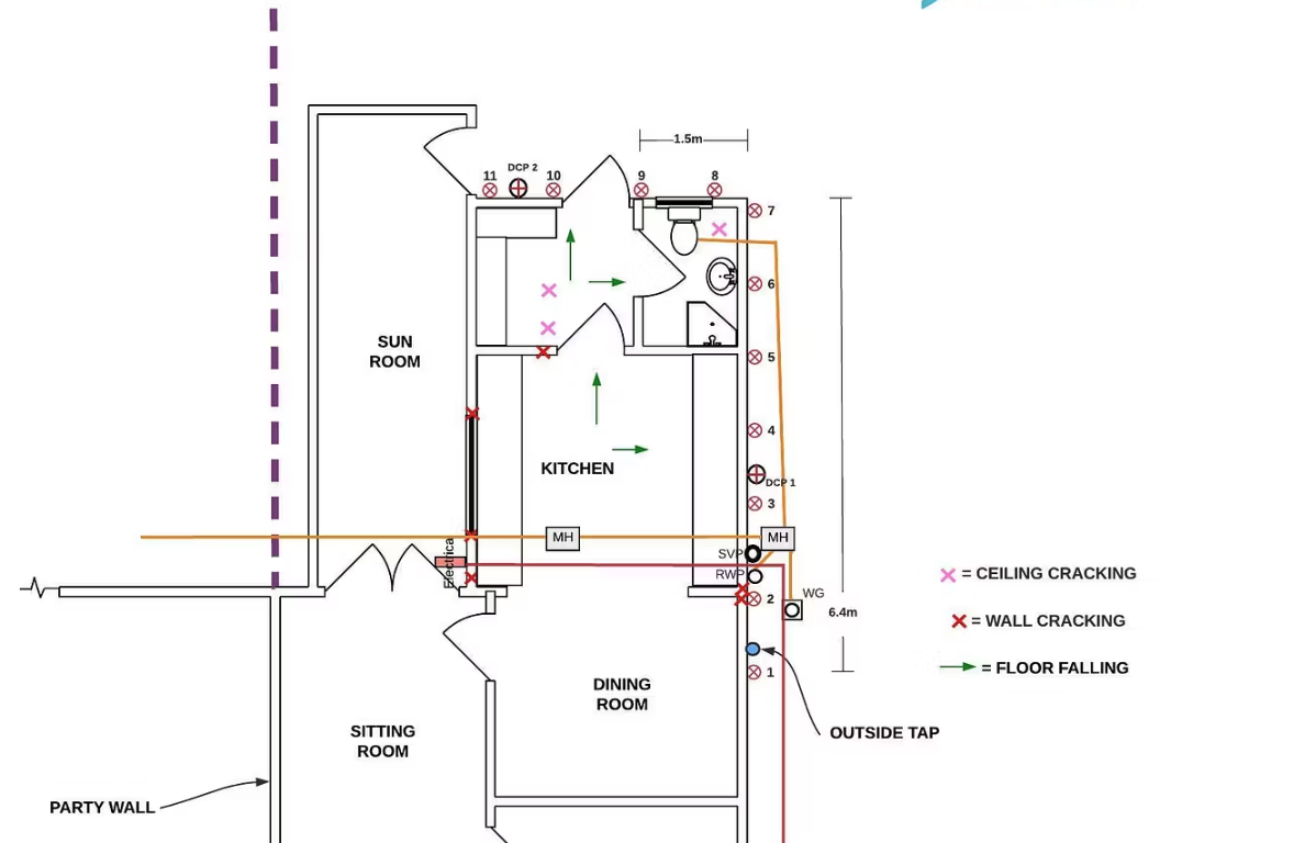
Subsidence affected a rear blockwork extension in Galway, with multiple reports confirming ground instability. Damaged drainage contributed to movement, requiring a fast, cost-effective stabilisation solution with minimal disruption.
Solution
Geobear delivered a one-day geopolymer injection solution using 11 injection points to strengthen ground beneath the foundation, stabilising the extension without excavation, reducing cost, and avoiding disruption to the homeowner.
Total project duration
Saved – versus underpinning
Targeted ground treatment
A residential property in County Galway experienced significant subsidence affecting a single-storey rear extension constructed from blockwork. Cracking and movement prompted the homeowner to commission multiple structural assessments, all of which confirmed the need for ground stabilisation.
Further investigation identified damaged adjacent drainage as a contributing factor, allowing fines to wash out and weaken the supporting soils beneath the foundation. With the issue confirmed, the homeowner required a solution that would address the ground instability quickly, without extensive disruption to the property.
The presence of both weak ground conditions and defective drainage created a complex failure mechanism. Any solution needed to stabilise the soil while ensuring no further impact on the drainage system.
Traditional repair methods would have required excavation around the extension, removal of spoil, and prolonged construction activity—causing significant inconvenience and potential damage to surrounding areas.
Mass concrete underpinning was estimated at €13k with extended timelines. The homeowner required a more efficient and cost-effective alternative.
Insurer
Geobear designed a bespoke ground improvement solution based on site investigation and trial hole data. The approach focused on strengthening the soils directly beneath the foundation.
A total of 11 injection points were installed, targeting a depth of approximately 0.3m below foundation level. Expanding geopolymer resin was injected to:
Drain monitoring was implemented throughout the works to ensure the injection process did not adversely affect the already compromised drainage system.
All works were completed within a single day, with:

The geopolymer injection successfully stabilised the extension, addressing the root cause of subsidence while avoiding the disruption associated with traditional underpinning.
The homeowner benefited from:
Every home is unique. Our experts are ready to listen and provide answers tailored to your specific property and concerns.